专业顾问 精准找房

在线咨询
专业顾问 精准找房

在线咨询
6.9元/㎡·天
建筑面积
推荐工位数






全部图片(8)
日租
6.9元/㎡·天
月租
8.31万元/月
类型
(5A)甲级写字楼
面积
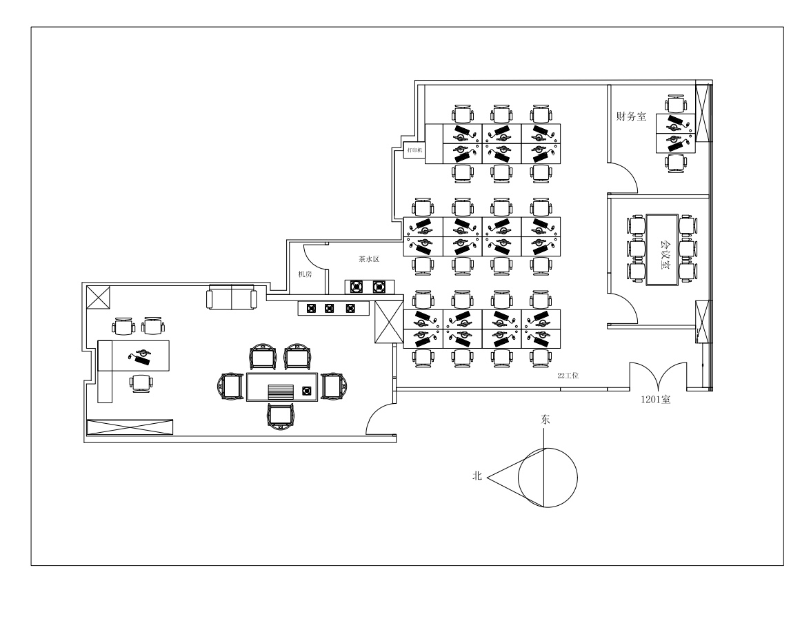
396m²
付款
付款灵活
楼层
中层/共28层
起租期
24个月起租
使用率
75%
装修
定制装修
注册
可注册
楼盘
互联网金融中心
分割
可分割出租
地址
海淀区中关村丹棱街甲1号
地铁
4号线10号线海淀黄庄双地铁50米

电话间

多功能厅

会议室

健身房

立体停车楼

洽谈室

屋顶花园

影音室

建筑面积
396m²楼层
28层物业
北京戴德梁行物业管理有限公司*请填写正确11位手机号码
重发

