专业顾问 精准找房

在线咨询
专业顾问 精准找房

在线咨询
5.3元/㎡·天
建筑面积
推荐工位数






全部图片(9)
日租
5.3元/㎡·天
月租
3.84万元/月
类型
(5A)甲级写字楼
面积
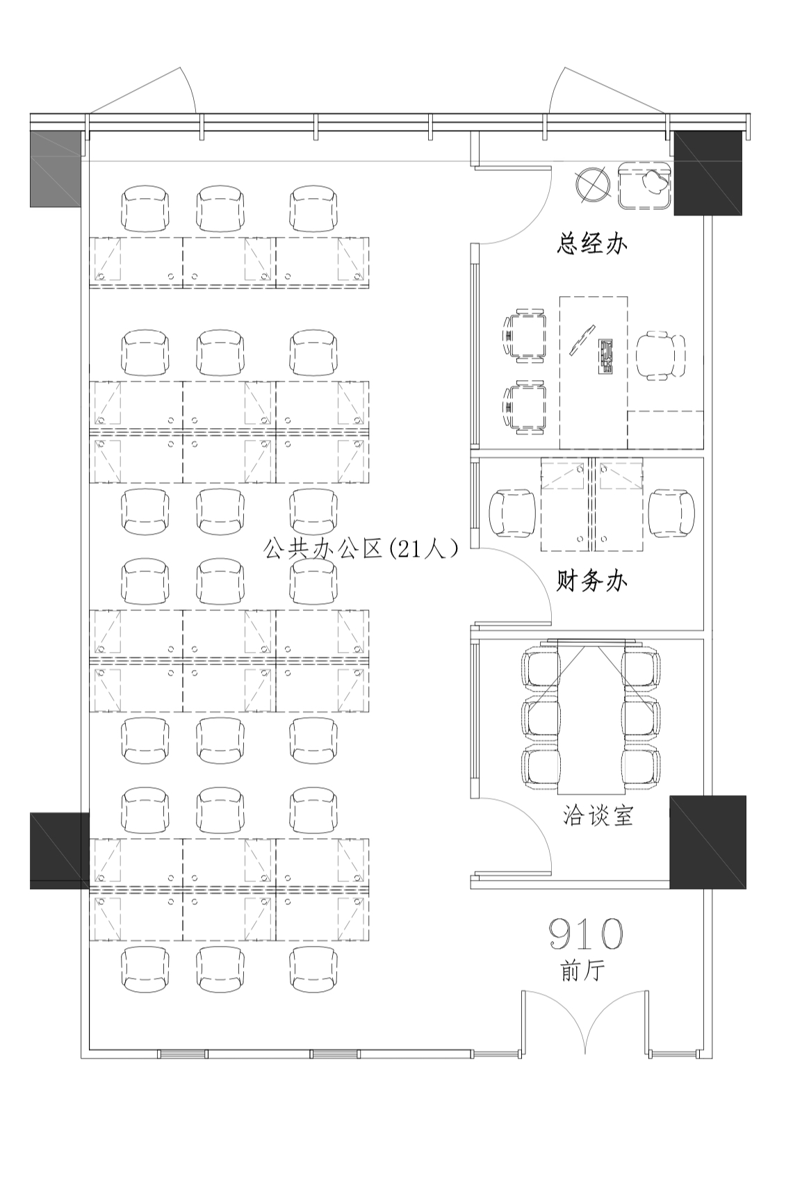
238m²
付款
付款灵活
楼层
高层/共18层
起租期
24个月起租
使用率
70%
装修
定制装修
注册
可注册
楼盘
神州数码大厦
分割
可分割出租
地址
海淀区中关村苏州街16号
地铁
距离地铁10号线苏州街站428米;距离地铁16号线万泉河桥站929米;距离地铁4号线大兴线中关村站982米

洽谈室

电话间

多功能厅

卫生间

文印区

影音室

建筑面积
238m²楼层
18层物业
北京盛世物业服务有限公司*请填写正确11位手机号码
重发

