专业顾问 精准找房

在线咨询
专业顾问 精准找房

在线咨询
6.2元/㎡·天
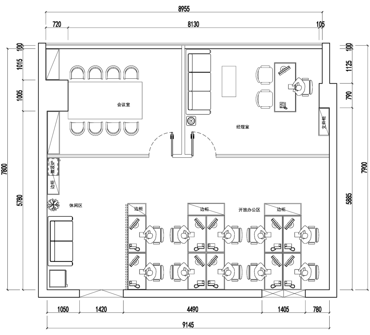
建筑面积
推荐工位数
工商注册





全部图片(5)
日租
6.2元/㎡·天
月租
2.07万元/月
类型
(5A)甲级写字楼
面积
110m²
付款
付款灵活
楼层
低层/共19层
起租期
12个月起租
使用率
70%
装修
遗留装修
注册
可注册
楼盘
国际财经中心
分割
可分割出租
地址
海淀紫竹桥西三环北路87号
地铁
距离地铁6号线花园桥站361米, 距离地铁10号线慈寿寺站1267米, 距离地铁6号线慈寿寺站1371米

洽谈室

电话间

多功能厅

沙发卡座

会议室

文印区

影音室

路演厅

建筑面积
110m²楼层
19层物业
世邦魏理仕物业管理有限公司*请填写正确11位手机号码
重发

